Wymieniałem ostatnio czujnik otwarcia maski i teraz błąd czujnika już nie pokazuje ale nadal jest zwarcie do +, przerwa w obwodzie. Oglądałem przewody i nigdzie nie widać żadnego uszkodzenia.
Czujnik zamka maski zwarcie
Moderator: Sebu$
-
mirasmaniak82
- Debiutant
- Posty: 41
- Rejestracja: 01 lis 2019, 21:40
- Imię: Mirek
- Lokalizacja: Wolsztyn
- Auto: Zafira C 2.0
- Model: ZC
- Oznaczenie silnika: Z20DT
Czujnik zamka maski zwarcie
Witam
Wymieniałem ostatnio czujnik otwarcia maski i teraz błąd czujnika już nie pokazuje ale nadal jest zwarcie do +, przerwa w obwodzie. Oglądałem przewody i nigdzie nie widać żadnego uszkodzenia.

Wymieniałem ostatnio czujnik otwarcia maski i teraz błąd czujnika już nie pokazuje ale nadal jest zwarcie do +, przerwa w obwodzie. Oglądałem przewody i nigdzie nie widać żadnego uszkodzenia.
- Pszczyna
- Zafiromaniak
- Posty: 2466
- Rejestracja: 22 maja 2010, 17:57
- Imię: Dariusz
- Lokalizacja: Oberschlesien
- Auto: Zafira B 1,9
- Model: ZB
- Oznaczenie silnika: Z19DT
- Gender:
- Wiek: 58
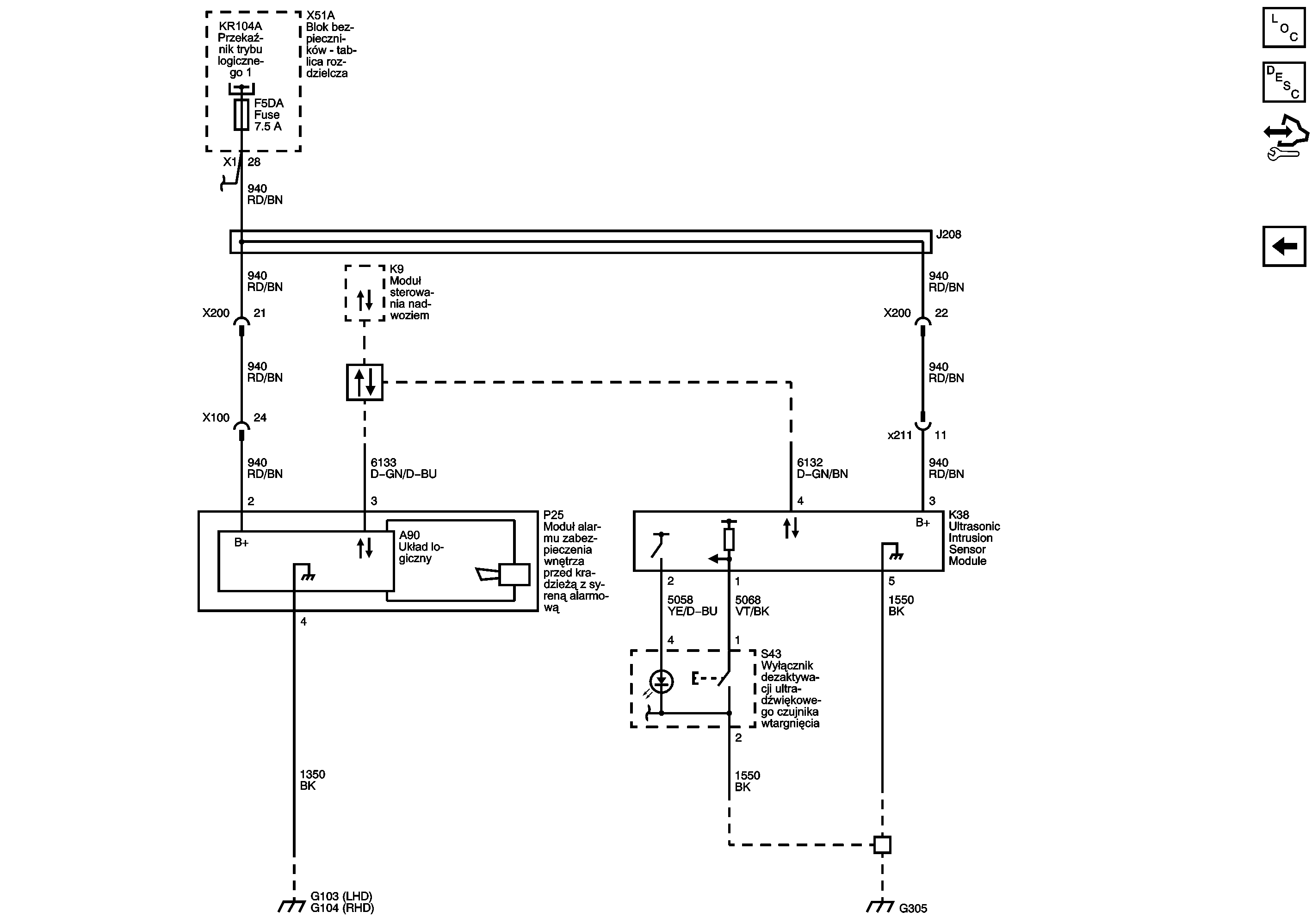
B3110 - Keyless Entry Transmitter*2 Low Battery (za niskie napięcie w układzie kluczyka z pilotem) ,wymiana baterii .
Czy zwarcie też jest bez czujnika ?
B3006 01
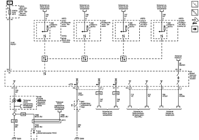
Moduł BCM wykrywa, że obwód sygnału wyłącznika alarmu otwarcia pokrywy silnika jest zwarty do akumulatora.
B3006 02
Moduł BCM wykrywa, że obwód sygnału wyłącznika alarmu otwarcia pokrywy silnika jest zwarty do masy.
B3006 04
Moduł BCM wykrywa, że obwód sygnału wyłącznika alarmu otwarcia pokrywy silnika jest przerwany.
Działania podejmowane podczas ustawiania DTC
Warunki kasowania DTC
• Bieżący kod DTC zostanie wyczyszczony, kiedy warunki generowania nie jest dalej obecne.
• Historia DTC zostanie wyczyszczona po 40 bezawaryjnych cyklach zapłonu.
Czy zwarcie też jest bez czujnika ?
B3006 01
Moduł BCM wykrywa, że obwód sygnału wyłącznika alarmu otwarcia pokrywy silnika jest zwarty do akumulatora.
B3006 02
Moduł BCM wykrywa, że obwód sygnału wyłącznika alarmu otwarcia pokrywy silnika jest zwarty do masy.
B3006 04
Moduł BCM wykrywa, że obwód sygnału wyłącznika alarmu otwarcia pokrywy silnika jest przerwany.
Działania podejmowane podczas ustawiania DTC
Warunki kasowania DTC
• Bieżący kod DTC zostanie wyczyszczony, kiedy warunki generowania nie jest dalej obecne.
• Historia DTC zostanie wyczyszczona po 40 bezawaryjnych cyklach zapłonu.
Mój garaż ----- viewtopic.php?f=87&t=32387&p=477253#p477253
-
mirasmaniak82
- Debiutant
- Posty: 41
- Rejestracja: 01 lis 2019, 21:40
- Imię: Mirek
- Lokalizacja: Wolsztyn
- Auto: Zafira C 2.0
- Model: ZC
- Oznaczenie silnika: Z20DT
Dzieki
Baterie to wiem już dawno tak pokazuje ale póki działa bez problemu to nie będe wymieniał.
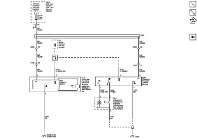
Po odłączeniu czujnika też pokazuje te błędy plus błąd ogólny na zegarach Awaria systemu, a po podłączeniu czujnika Awaria systemu znika ale zostaję bład o zwarciu jak na zdjęciu. Wczoraj miałam wyjęty aku na jakąś godzinke bo ogladąłem te przewody co ida do czujnika ale po ponownym podłączeniu błąd jest nadal
Baterie to wiem już dawno tak pokazuje ale póki działa bez problemu to nie będe wymieniał.
Po odłączeniu czujnika też pokazuje te błędy plus błąd ogólny na zegarach Awaria systemu, a po podłączeniu czujnika Awaria systemu znika ale zostaję bład o zwarciu jak na zdjęciu. Wczoraj miałam wyjęty aku na jakąś godzinke bo ogladąłem te przewody co ida do czujnika ale po ponownym podłączeniu błąd jest nadal
- Pszczyna
- Zafiromaniak
- Posty: 2466
- Rejestracja: 22 maja 2010, 17:57
- Imię: Dariusz
- Lokalizacja: Oberschlesien
- Auto: Zafira B 1,9
- Model: ZB
- Oznaczenie silnika: Z19DT
- Gender:
- Wiek: 58
Zostaje prucie wiązki , a baterię wymień pomimo działania pilota to niewielki koszt.
Mój garaż ----- viewtopic.php?f=87&t=32387&p=477253#p477253